Paddington Terrace House

Client Brief

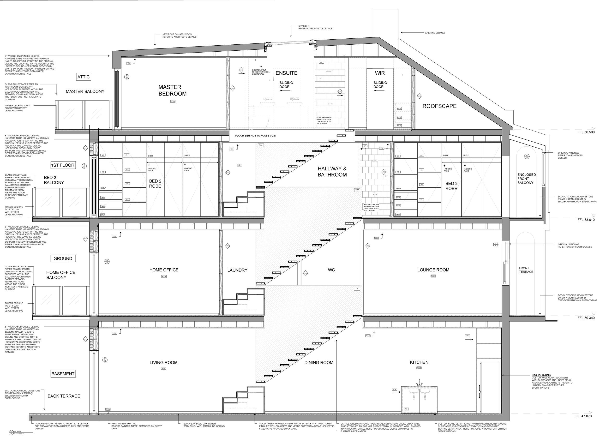
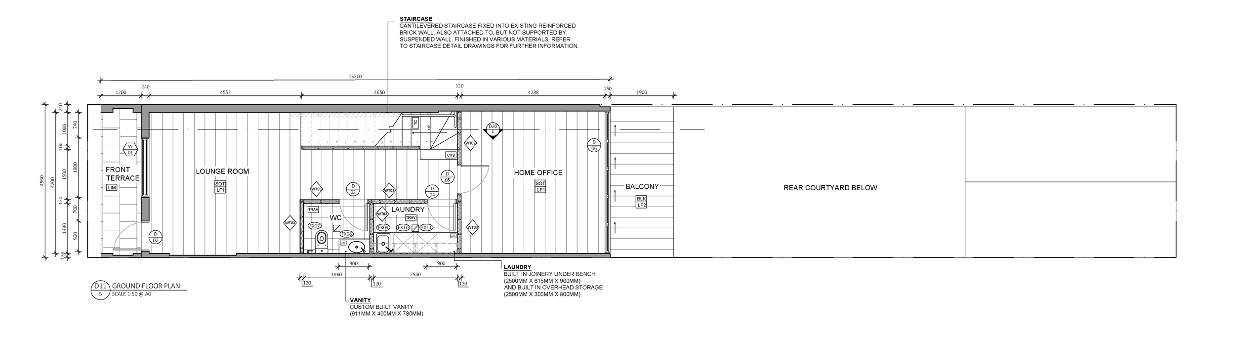
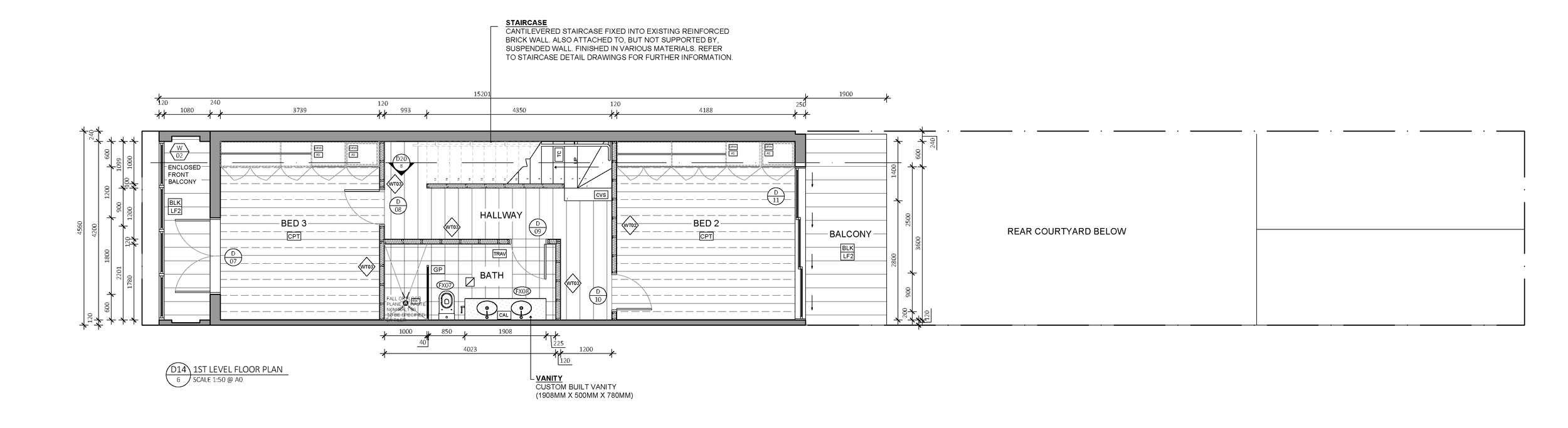
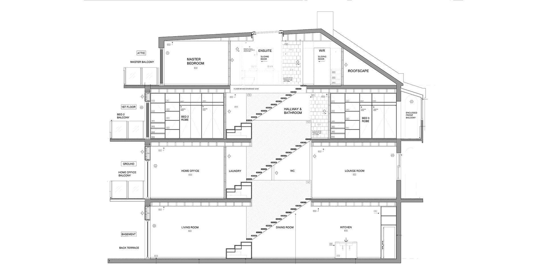
This project involves redesigning a two-storey heritage terrace with a new basement and attic, transforming it into a four-level contemporary family home while preserving its heritage character. The scope includes:

  • Partial CAD documentation, including general arrangement drawings and key details

  • Internal layouts focused on circulation, zoning, and functionality

  • Construction-level documentation of staircases, wet areas, and joinery

Location

Year

Software

Paddington Sydney

2024

AutoCAD

Adobe Suite

Design Concept

The design adopts a refined, contemporary language that balances tactile richness with architectural restraint. Natural materials, including warm-toned timber, pigmented stone, and soft grey finishes, are layered to create a calm yet expressive interior. Carefully detailed elements, like a slender-profile staircase and streamlined joinery, enhance spatial flow and light while allowing a quiet dialogue between historic character and modern intervention.

Staircase design as featured within the plans

Material Board

.Red travertine by Signorino

EZRML3030 Altas tiles by Tiles of Ezra

‘Hekke’ European oak timber by Tongue & Groove

Custom off-form concrete by Surface Archetypes

Earlwood timber veneer by Navurban

EZR1550 Thin Bejmat Chocoate tiles by Tiles of Ezra

Brushed nickel accents in joinery and tapware throughout

Limewash Paint in Ash by BAUWERK

FULL DOC PACKAGE